Norgegatan 1

Kista
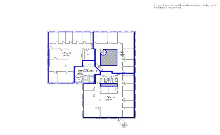
Planskiss

Yta

652 m²

Hyra

1 900 /m²/år

Tillträde

Enligt överenskommelse

Beskrivning

  • Kontor
  • Övrigt

Ljusa fina lokaler nära Kista Galleria och Kista Tower!

Ljus och fin lokal med stora möjligheter. En del av huset har ett atrium vilket ger en luftig och fin känsla. Huset är pelarbyggt vilket möjliggör stor flexibilitet gällande specifika anpassningar för ert företag. Fint garage med ca: 10 p platser. Egen infart. Utanför finns även ett 50 tal parkeringsplatser. Ca: 10 minuters gångväg till Kista Galleria och T-bana. Möjlighet att hyra hela huset!

Ytor

Typ av yta Minsta yta Maximal yta Kr/m2/år
Kontor 652 652 1 900

Ekonomi

Tillträde:

Enligt överenskommelse

Utgångshyra kr/m2/år:

1900

Utförande

Fastighetsbeteckning:

Röros 1

Byggår:

1992

Våningsplan:

2 av 4

Dokument

Teknisk information

Ventilation:

Mekanisk ventilation med kyla

Omgivning

Kommunikationer

T-bana: Kista Bussar: Ja flertalet bussar

Norgegatan 1

Om New Property AB

New Property är en ledande fastighetsrådgivare med ett heltäckande erbjudande från uthyrning till transaktion. Vi är den största uthyraren i Stockholm och möjliggör fastighetstransaktioner över hela Sverige. Vi har ett nytt sätt att se på fastighetsrådgivning som bygger på de förtroendefulla relationerna vi skapar, bekräftat i det stora antalet återkommande kunder. För oss står alltid kunden i centrum. Vi är länken mellan fastighetsägare och hyresgäster - säljare och köpare. Vi är experter på uthyrning, fastighets- och investeringsrådgivning. Vårt dedikerade team har gedigen erfarenhet, marknadsinsikt och engagemang av att skapa bestående värden för våra kunder. New Property grundades 2005, och har vuxit genom organisk tillväxt till att idag vara ett partnerägt bolag med ett team av 30 erfarna fastighetsrådgivare.

New Property AB

Nybrogatan 39

114 39 Stockholm

www.newproperty.se

Fler annonser från New Property AB