Malaxgatan 7

Kista
Planskiss

Yta

2 500 m²

Hyra

Tillträde

Enligt överenskommelse

Beskrivning

  • Kontor
  • Kontorshotell & coworking
  • Övrigt

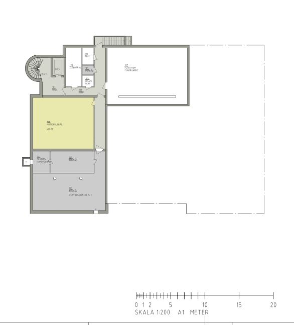
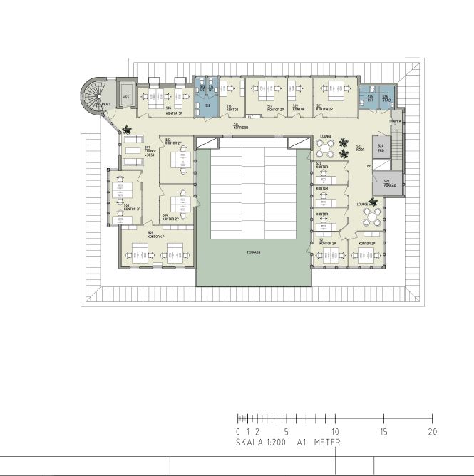
Möjlig skolfastighet i Akalla/Kista

Mycket fin fastighet belägen på central adress i Akalla/Kista. Fastigheten som idag är tomställd ligger vid en vändplan så det är inte trafikstört. Fastighetsägaren öppnar upp för möjligheten att bedriva skolverksamhet (gymnasium eller vuxenutbildning) i huset, men det finns idag ingen gällande detaljplan som tillåter det. Däremot kan man söka tillfälligt bygglov för att sedan ändra planen. Stora utomhusytor finns för ev. skolgård. Fastigheten har 3 plan med rätt mått för takhöjder, rumsbredder etc. Stor ljusgård som kan användas som tex matsal. I övrigt bra skick på hela huset och såklart kommer man att anpassa efter nya hyresgästen. Bredvid denna fastighet bedrivs Cordobaskolan sedan ett par år tillbaka.

Ytor

  • Total yta:

    2500 m2

Ekonomi

Tillträde:

Enligt överenskommelse

Utförande

Fastighetsbeteckning:

Malaxgatan 7

Våningsplan:

1 av 5

Teknisk information

Ventilation:

Mekanisk från- och tilluft med kyla.

Omgivning

Kommunikationer

T-bana: akalla

Malaxgatan 7

Om New Property AB

New Property är en ledande fastighetsrådgivare med ett heltäckande erbjudande från uthyrning till transaktion. Vi är den största uthyraren i Stockholm och möjliggör fastighetstransaktioner över hela Sverige. Vi har ett nytt sätt att se på fastighetsrådgivning som bygger på de förtroendefulla relationerna vi skapar, bekräftat i det stora antalet återkommande kunder. För oss står alltid kunden i centrum. Vi är länken mellan fastighetsägare och hyresgäster - säljare och köpare. Vi är experter på uthyrning, fastighets- och investeringsrådgivning. Vårt dedikerade team har gedigen erfarenhet, marknadsinsikt och engagemang av att skapa bestående värden för våra kunder. New Property grundades 2005, och har vuxit genom organisk tillväxt till att idag vara ett partnerägt bolag med ett team av 30 erfarna fastighetsrådgivare.

New Property AB

Nybrogatan 39

114 39 Stockholm

www.newproperty.se

Fler annonser från New Property AB