Cylindervägen 7

Nacka Strand
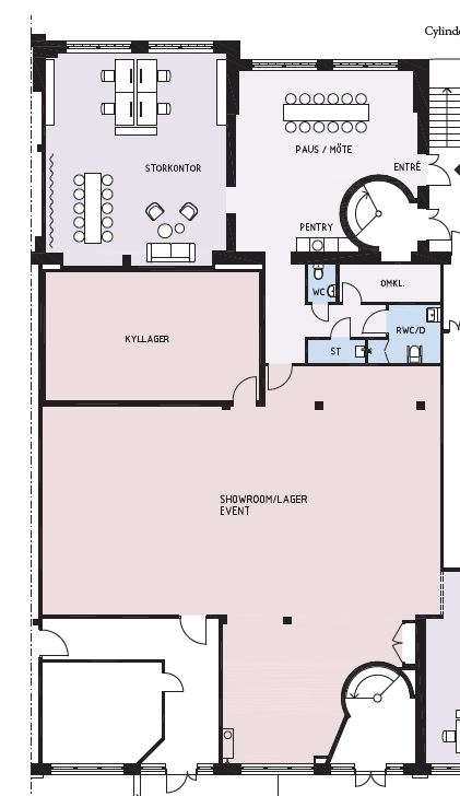
Planskiss

Yta

418 m²

Hyra

Tillträde

Enligt överenskommelse/Snarast

Beskrivning

  • Lager & logistik
  • Kontor

Kontor, lager och kylrum – allt i samma lokal!

Nu har du möjlighet att hyra en unik lokal i en av de vackra tegelbyggnaderna i Nacka Strand. Här får du ett kontor med industriell känsla, anpassat för ca 10–12 personer, i direkt anslutning till både lager och kylrum. Kontor: Yta för ett team på 10–12 personer Lager: Ca 200 kvm, med möjlighet att nyttja som enklare verkstad (t.ex. snickeri) Kylrum: Ca 50 kvm, perfekt för verksamheter med behov av kylda ytor Leveranser sker smidigt via två alternativ – antingen med lyftbord från Cylindervägen eller via Automobilgatan. En flexibel lokal som kombinerar kontor, lager och kylmöjligheter på ett sätt som få andra kan erbjuda.

Ytor

  • Total yta:

    418 m2

Ekonomi

Tillträde:

Enligt överenskommelse/Snarast

Utförande

Fastighetsbeteckning:

Cylindervägen 7

Byggår:

1929

Renoveringsår:

2021

Dokument

Teknisk information

Ventilation:

Kyld tilluft, mekanisk frånluft

Omgivning

Närservice:

Gott om restauranger i området såsom, Fabriken by Pontus, Restaurang J,

Kommunikationer

Bussar: Buss 433C från Cityterminalen, Buss 443 från Slussen, Buss 840 från Handen terminalen, Buss 465 från Fisksätra, Flertalet bussar från Nacka/Värmdö till Nacka Trafikplats. Färja: Pendelfärja från Nybrokajen och Lidingö

Cylindervägen 7

Om New Property AB

New Property är en ledande fastighetsrådgivare med ett heltäckande erbjudande från uthyrning till transaktion. Vi är den största uthyraren i Stockholm och möjliggör fastighetstransaktioner över hela Sverige. Vi har ett nytt sätt att se på fastighetsrådgivning som bygger på de förtroendefulla relationerna vi skapar, bekräftat i det stora antalet återkommande kunder. För oss står alltid kunden i centrum. Vi är länken mellan fastighetsägare och hyresgäster - säljare och köpare. Vi är experter på uthyrning, fastighets- och investeringsrådgivning. Vårt dedikerade team har gedigen erfarenhet, marknadsinsikt och engagemang av att skapa bestående värden för våra kunder. New Property grundades 2005, och har vuxit genom organisk tillväxt till att idag vara ett partnerägt bolag med ett team av 30 erfarna fastighetsrådgivare.

New Property AB

Nybrogatan 39

114 39 Stockholm

www.newproperty.se

Fler annonser från New Property AB