Cylindervägen 7

Nacka Strand
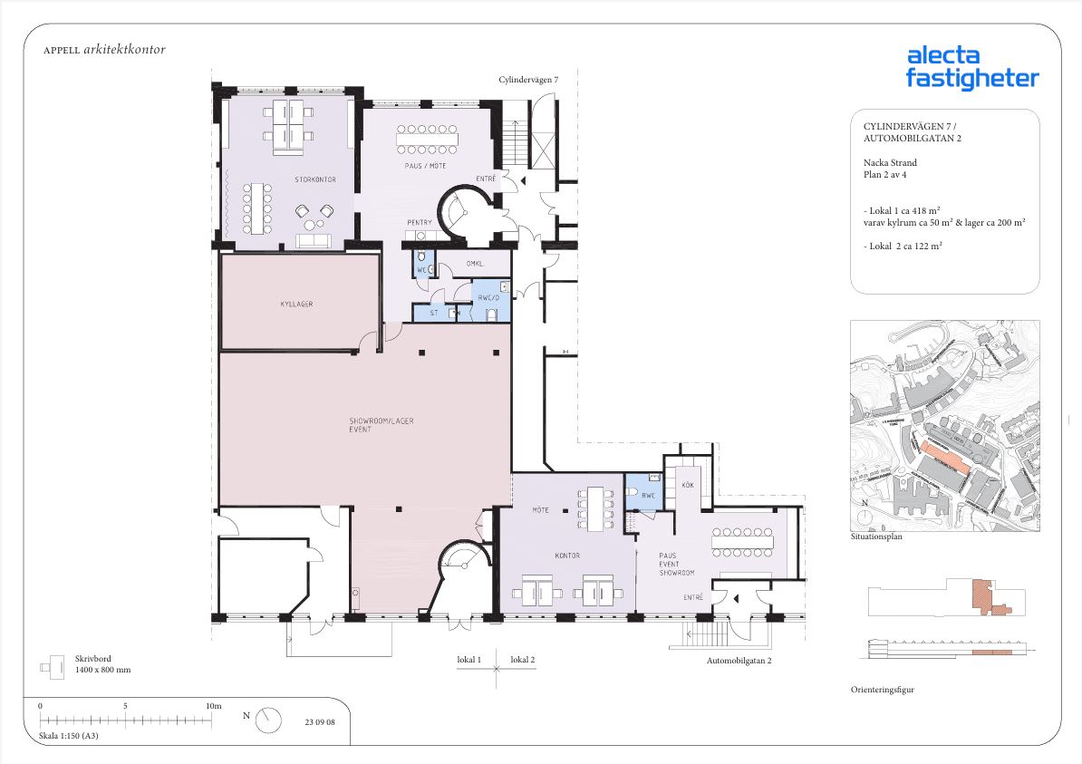
Planskiss

Yta

418 - 540 m²

Hyra

Tillträde

Enligt överenskommelse/Snarast

Beskrivning

  • Butik
  • Lager & logistik
  • Kontor

Unik möjlighet – Lager, kontor och showroom i hjärtat av Nacka Strand

Välkommen till en lokal som kombinerar funktion, flexibilitet och ett fantastiskt läge! Här får du tillgång till ett yteffektivt lager med generös takhöjd, kompletterat med kontorsytor och möjligheten att skapa ett representativt showroom för dina kunder. Lager & verkstad - Ca 200 kvm lageryta med upp till 5 meters takhöjd, förbehåll för installationer i taket. - Kylrum om ca 50 kvm. - Lokalen lämpar sig för enklare verkstadsverksamhet. Smidiga logistiklösningar med två lastintag: - Ett med lyftbord direkt från gatan. - Ett där varor enkelt kan tas in via handtruck. Kontor & showroom - Två mindre kontorsytor i anslutning till lagret. - Perfekt möjlighet att inreda ett representativt showroom eller kundmottagning. - En arbetsmiljö som förenar det praktiska med det professionella. Läge & tillgänglighet - Centralt i populära Nacka Strand – nära både city och skärgården. - En parkeringsplats finns att hyra direkt utanför samt tillgång till flera garageplatser i området. - Området präglas av en dynamisk mix av företag, service och restauranger. Här får du mer än bara en lokal – du får en plats som stärker din verksamhet och skapar rätt intryck för både kunder och medarbetare.

Ytor

Typ av yta Minsta yta Maximal yta Kr/m2/år
Kontor 418 540

Ekonomi

Tillträde:

Enligt överenskommelse/Snarast

Utförande

Fastighetsbeteckning:

Sicklaön 369:36

Byggår:

1929

Renoveringsår:

2021

Teknisk information

Ventilation:

Kyld tilluft, mekanisk frånluft

Omgivning

Närservice:

Gott om restauranger i området såsom, Fabriken by Pontus, Restaurang J,

Kommunikationer

Bussar: Buss 433C från Cityterminalen, Buss 443 från Slussen, Buss 840 från Handen terminalen, Buss 465 från Fisksätra, Flertalet bussar från Nacka/Värmdö till Nacka Trafikplats. Färja: Pendelfärja från Nybrokajen och Lidingö

Cylindervägen 7

Om New Property AB

New Property är en ledande fastighetsrådgivare med ett heltäckande erbjudande från uthyrning till transaktion. Vi är den största uthyraren i Stockholm och möjliggör fastighetstransaktioner över hela Sverige. Vi har ett nytt sätt att se på fastighetsrådgivning som bygger på de förtroendefulla relationerna vi skapar, bekräftat i det stora antalet återkommande kunder. För oss står alltid kunden i centrum. Vi är länken mellan fastighetsägare och hyresgäster - säljare och köpare. Vi är experter på uthyrning, fastighets- och investeringsrådgivning. Vårt dedikerade team har gedigen erfarenhet, marknadsinsikt och engagemang av att skapa bestående värden för våra kunder. New Property grundades 2005, och har vuxit genom organisk tillväxt till att idag vara ett partnerägt bolag med ett team av 30 erfarna fastighetsrådgivare.

New Property AB

Nybrogatan 39

114 39 Stockholm

www.newproperty.se

Fler annonser från New Property AB