Lediga lokaler i Fyrislund
-
Åkaregatan 8Östra Fyrislund, Uppsala5 645 m²Industri & verkstadKontorLager & logistik
Hel fastighet uthyres om totalt 5 645kvm med egen gård, markport, lastkaj, parkering mm. Stora öppna ytor med takhöjder från ca 6,2m upp till 8,3m!
Markplan - Ca 5 176kvm på markplan. Perfekt lämpade för tex lager/produktion/verkstad med tillhörande kontors- & personalytor. - Bra takhöjder fr... - 22 dagar
-
Svederusgatan 1Fyrislund, Uppsala600 m²KontorSkola, vård & omsorgÖvrigt
Ledig kontorslokal om 600 kvm med gott om parkeringsplatser
Ledig kontorslokal om 600 kvm på plan två. Planlösningen består av ljusa rum i modernt skick och det finns goda möjligheter att göra anpassningar enl... -
Fyrisborgsgatan 5Uppsala, Uppsala11 - 47 m²KontorKontorshotell & coworking
Välkommen till Fastoffice Fyrisborg!
Vi vet att arbetsplatsen är så mycket mer än bara en plats för arbete. Det är den trygga arenan där du och dina kollegor umgås, bygger relationer och... - 25 dagar
-

Rapsgatan 23Uppsala Business Park, Uppsala1 251 m²Industri & verkstadKontorStor och välutrustad labblokal i innovativ miljö
Välkommen till Rapsgatan och innovativa Uppsala Business Park. Nu finns en unik chans att hyra en stor labblokal i markplan med många kontor, konferen... -
Säbygatan 6-8Boländerna , Uppsala2 000 - 4 000 m²UtvaldIndustri & verkstadKontorLager & logistikProduktion labb och kontor i Främre Boländerna
En annons från Castellum - 30 dagar
-
Stålgatan 8-12Fyrislund, Uppsala139 m²Lager & logistikLager med kontorsdel
Välkommen till denna kombinationslokal med både kontors- och lagerdel. Här erbjuds det en lokal med bra takhöjd i lagerdelen samt en stor markport för... - november
-

Virdings allé 24Uppsala Business Park, Uppsala25 - 75 m²Industri & verkstadSmå labblokaler med inredning
Välkommen till Rapsgatan och vårt labbhotell i Uppsala Business Park. Nu har du chansen att hyra mindre labblokaler i flera olika storlekar, från 25 t... -
Grafikgatan 12Fyrislund, Uppsala230 m²Industri & verkstadKontorLager & logistik1255 kr/m²/år
- oktober
-

Virdings allé 32BUppsala Business Park, Uppsala136 m²KontorKontor med fantastisk utsikt i Uppsala Business Park
På plan 6 finns en fin kontorslokal om 136 kvm med fantastisk utsikt över Uppsala. Här har ni era egna kontorslokaler men delar pentry och pausutrymme... -
Typsnittsgatan 4Östra Fyrislund, Uppsala1 456 m²ButikIndustri & verkstadKontor
Bygget ärs snart klart. Man kan hyra hela utbyggnaden om totalt 1 465kvm med ca 9m i takhöjd eller tre mindre lokaler! Häng med!
Etapp 1 är klar och fullt uthyrd till fyra hyresgäster. Nu börjar vi bygga etapp 2 på spekulation med byggstart redan nu i september (en utbyggnad) ... -

Virdings allé 32AUppsala Business Park, Uppsala511 m²KontorKontorslokal med egen entré och uteplats
Välkommen till Uppsala Business Park. Här erbjuds en unik kontorslokal på markplan med egen entré och reception samt uteplats. Lokalen består av en st... -
Rapsgatan 6Fyrislund, Uppsala1 500 - 5 000 m²Industri & verkstadKontorLager & logistik
Lagerlokal med goda lastningmöjligheter, generös takhöjd och personalytor finns att hyra i Fyrislund
Nu finns möjlighet att hyra en välplanerad och lättillgänglig kombinationslokal om totalt 5 000 kvm i strategiskt läge i Fyrislund, Uppsala. Lokalen ... -
Svederusgatan 1Fyrislund, Uppsala896 m²KontorSkola, vård & omsorg
Ljus och rymlig kontorslokal med högt i tak och generösa faciliteter
Nu finns en kontorslokal om cirka 900 kvm tillgänglig för uthyrning i Fyrislund, belägen i en modern industrifastighet som rymmer kontor, produkt... -
Grafikgatan 26Uppsala5 369 m²Lager & logistik
Lagerlokal med oslagbart skyltläge mot E4:an – 5369 kvm flexibel yta i attraktivt läge i Uppsala
Välkommen till en imponerande lagerlokal om hela 5369 kvm belägen på Grafikgatan 26, i det expansiva området Östra Fyrislund, med mycket bra skyltläge... -
Grafikgatan 28Uppsala570 m²Kontor
Kontor med utmärkt skyltläge mot E4!
Välkommen till ett rymligt och flexibelt kontor om 570 kvm, beläget en trappa upp på Grafikgatan 28. Här får du en ljus och trivsam arbetsmiljö med st... -
Grafikgatan 12Fyrislund, Uppsala230 m²Industri & verkstadLager & logistik
Modern lager- och industrilokal i Uppsala – med kontor och perfekt läge nära E4:an!
1255 kr/m²/år -
Åkaregatan 5Östra Fyrislund, Uppsala216 m²Industri & verkstadLager & logistik
Industri/lagerlokal med strategiskt läge.
1285 kr/m²/år -
Favoritmarkera och jämför annonser
Favoritmarkera dina fynd och jämför enkelt dessa när du är inloggad
-
Grafikgatan 29Uppsala515 m²Industri & verkstadLager & logistikÖvrigt
Modern Industrilokal i Östra Fyrislund
-
Edvard Berlingsgatan 7Fyrislund, Uppsala1 483 m²Industri & verkstadLager & logistik
VERKSAMHETSLOKALER I FYRISLUND MED STORA INHÄGNADE GÅRDSYTOR FÖR UPPSTÄLLNING!
1079 kr/m²/år -
Södra Depågatan 5Östra Fyrislund, Uppsala500 - 7 000 m²ButikIndustri & verkstadKontor
Effektiv och ändamålsenlig nyproduktion i nära samarbete med framtida hyresgäster.
-
Stålgatan 14Fyrislund, Uppsala1 330 m²Industri & verkstadLager & logistik
Lager- och logistiklokal med stora möjligheter i Fyrislund
-
Grafikgatan 32Östra Fyrislund, Uppsala96 m²Kontor
Ljust och rymligt kontor på övre plan
1400 kr/m²/år -
Grafikgatan 32Östra Fyrislund, Uppsala96 - 192 m²ButikIndustri & verkstadKontor
Flexibel lokal för verkstad, lager eller produktion med kontor på övre plan
1400 kr/m²/år -
Södra Depågatan 6Fyrislund, Uppsala111 m²Industri & verkstadKontorLager & logistik
Industri/lagerlokal i östra Fyrislund!
1500 kr/m²/år -
Långtradargatan 1BÖstra Fyrislund, Uppsala296 m²ButikIndustri & verkstadKontor
Unik etableringsmöjlighet i ett av Uppsalas bästa lägen! Lokalerna och dess läge lämpar sig utmärkt för företag som vill synas!
-
Stålgatan 14Fyrislund, Uppsala1 081 m²Industri & verkstadLager & logistik
Lagerlokal om totalt 800 kvm med generös takhöjd
-
Grafikgatan 26Östra Fyrislund, Uppsala18 - 300 m²KontorKontorshotell & coworking
Företagskollektiv hos G26 Lounge
-
Åkaregatan 5Gnista industriområde, Uppsala215 m²ButikIndustri & verkstadKontor1285 kr/m²/år
- september
-

Virdings allé 16Uppsala Business Park, Uppsala325 m²Industri & verkstadEffektiv och funktionellt inredd labblokal
Välkommen till Virdings allé 16 och Uppsala Business Park. Här erbjuds en inredd labblokal med möjlighet till tryckluft, kvävgas och destillerat v... -
Upplagegatan 10Östra Fyrislund, Uppsala332 m²KontorÖvrigt
Fint kontor i hög klass. Rumsindelat idag men går att anpassa efter önskemål. Takterass finns här.
Fint kontor högst upp i huset. Stor inhägnad gård med gott om parkering. -
Upplagegatan 10Östra Fyrislund, Uppsala918 m²ButikIndustri & verkstadKontor
Kombinationslokaler för ett mindre företag i en modern och fin byggnad med stora glaspartier och hög klass. Lättillgängliga ytor med egen port.
Gatuplanet (nämnt som våning 1 på ritningen) passar bra för inlastning, lager och servicelokal men även som försäljningsyta etcetera. En trappa upp ... -
Upplagegatan 10Östra Fyrislund, Uppsala858 m²ButikIndustri & verkstadKontor
Kombinationslokaler för ett mindre företag i en modern och fin byggnad med stora glaspartier och hög klass. Lättillgängliga ytor med egen port.
Gatuplanet (nämnt som våning 1 på ritningen) passar bra för lager, inlastning och servicelokal men även som försäljningsyta etcetera. En trappa upp ... -
Upplagegatan 10Östra Fyrislund, Uppsala661 m²ButikIndustri & verkstadKontor
Kombinationslokaler för ett medelstort företag i en modern och fin byggnad med hög klass. Lättillgängliga ytor med egen port.
Gatuplanet (nämnt som våning 1 på ritningen) passar bra för inlastning, lager och servicelokal men även som försäljningsyta etcetera. Högst upp i by... -
Virdings allé 32Uppsala Business Park, Uppsala30 m²Kontorshotell & coworking
Välkommen till FirstOffice Uppsala Business Park! Ett nybyggt Cowork i epicentret av start-ups, konsulter, småföretag och stora bolag.
FirstOffice Uppsala Business Park Cowork ligger centralt t i hjärtat av Uppsala Business Park med moderna och ljusa lokaler och gemensamhetsutrymmen ... -
Danmarks-Kumla Övergård 113Östra Fyrislund, Uppsala2 500 m²Industri & verkstadLager & logistikÖvrigt
Uppställningsyta i optimalt läge invid Kumlamotet, en av Uppsalas entréer från E4, och i anslutning till Östra Fyrislund.
Uppställningsyta i mycket rationellt läge i direkt närheten till E4an och Östra Fyrislund. Yta: Ca 2500 kvm Området är stängslat, 2 m högt staket... -
Norra Depågatan 2Fyrislund, Uppsala3 612 m²Industri & verkstadKontorKontorshotell & coworking
Moderna lokaler i Uppsala, flexibla och anpassningsbara för olika verksamheter.
1600 kr/m²/år -
Lastbilsgatan 8Östra Fyrislund, Uppsala700 m²Industri & verkstadKontorLager & logistik
-
Lastbilsgatan 8Fyrislund, Uppsala15 - 410 m²ButikIndustri & verkstadKontor
-
Lastbilsgatan 8Uppsala, Uppsala15 - 410 m²ButikIndustri & verkstadKontor
- augusti
-

Virdings allé 32AUppsala Business Park, Uppsala218 m²KontorLjust kontor med uteplats och goda grannar
Välkommen till Uppsala Business Park och ett praktiskt kontor i markplan. Lokalen består av sex kontorsrum i fil, två samtalsrum och ett större mötesr... -
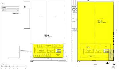
Upplagegatan 10Östra Fyrislund, Uppsala3 800 m²ButikIndustri & verkstadKontor
Möjligheternas fastighet, anpassas efter önskemål. Lager med portar, kontor, uppställningsyta, inhägnad gård för uppställning. Byggrätt finns!
Gatuplanet passar bra för lager, service eller butik. Mellanvåningen har är idag kontor men har bra bärighet och takhöjd så här kan vi skapa en bilra... -

Virdings allé 32BUppsala Business Park, Uppsala15 - 59 m²KontorKontor med fantastisk utsikt från våning 7
Välkommen till Virdings allé 32B. På översta våningen finns möjligheten att hyra ett ljust och fint kontor med härlig utsikt. Här disponerar ni flera ...
























