Lediga lokaler i Mölndal, sida 6
-
Krokslätts torg 3Krokslätts torg, Mölndal162 - 557 m²Kontor
Fräscha, flexibla kontor anpassas i storlek och utformning efter era behov. Spårvagnshållplats direkt utanför.
Vid Krokslätts torg finns nu möjlighet att förhyra en anpassningbar kontorslokal om 162-557 kvm. Hör av er så diskuterar vi möjliga upplägg! Gott om... - Äldre
-
Brogatan 2BCentrum Mölndal, Mölndal138 m²Butik
Butikslokal med Skyltläge i Mölndals Centrum
-
Kråketorpsgatan 20Åbro, Mölndal315 m²KontorLager & logistik
Lager/showroom i anslutning till GoCo & bra synlighet mot E6:an. Ny hyresgäst kan vara med & påverka layout av lokalen, 3,20 m takh, markport
-
Norra Forsåkersgatan 19Mölndals Kvarnby, Mölndal104 m²Kontor
-
Idrottsvägen 14Åby, Mölndal500 - 19 000 m²Industri & verkstadKontorLager & logistik
Unik möjlighet för större verksamhet i centrala Mölndal, lager och kontor upp till 19 000 kvadratmeter
Vi vill nog påstår att det här är en unik möjlighet i centrala Göteborgsregionen. Under senare delen av 2027 lämnar Kappahl sitt centrallager. Idag ... -
Entreprenörsstråket 6Mölndal964 m²Skola, vård & omsorgÖvrigt
Fantastisk möjlighet - Hyr operationssal i den nya stadsdelen, GoCo Health Innovation City
-
Krokslätts Fabriker 38Mölndal
180 m²KontorVälkommen till denna nya fina lokal i härliga Krokslätts Fabriker. Lokalen befinner sig i markplan. Entrén med automatisk dörröppnare går till ett fi...
-
Prästgårdsgatan 30Mölndal, Mölndal289 m²Kontor
Fräsch inflyttningsklar lokal med perfekt läge i Mölndal!
Fastigheten har ett centralt läge i expansiva Mölndal- här finns alla förutsättningar för er att trivas! I Pedagogen Park sitter du i en lugn arbetsm... -
Flöjelbergsgatan 17Mölndal, Mölndal700 - 2 100 m²Övrigt
Nybyggt i Lackarebäck
-
Flöjelbergsgatan 14Lackarebäck, Mölndal200 m²Kontor
Ljus lokal med fina ytskikt och bra parkeringsmöjligheter!
-
Entreprenörsstråket 10Mölndal, Mölndal630 m²Kontor
Prime kontorslokal med möjlighet till kort avtal – i hjärtat av den innovativa miljön på GoCo! Inflyttning direkt!
Letar du efter en modern och representativ kontorslösning med hög standard? Nu finns en unik möjlighet att hyra ca 630 m² i The House , GoCos huvu... -

Flöjelbergsgatan 7 ALackarebäck, Mölndal230 m²KontorKontor med utmärkt skyltläge mot E6:an!
Lättillgänglig kontorslokal med blandad planlösning, enskilda rum och ett storkontor alt utställningsyta. Lokalen kan anpassas efter önskemål för ett ... -

Flöjelbergsgatan 13Lackarebäck, Mölndal210 m²KontorKontorslokal i Lackarebäck
Mycket bra läge för detta kontor som kommer att genomgå en renovering innan inflyttning. Ta chansen att vara och påverka både utseende och funktion. ...1400 kr/m²/år -
Alfagatan 7Jolen, Mölndal447 m²Kontor
Modert rumsindelat kontor på utmärkt läge i Mölndal!
-
Bergfotsgatan 4Mölndal, Mölndal92 m²Kontor
Nyrenoverat i Lackarebäck
-
Norra Ågatan 38Mölndal20 - 90 m²Industri & verkstad
Förrådsytor på Norra Ågatan 38
Här finns en lediga lagringsytor från 20 - 90 kvadratmeter. Fastigheten ligger mycket nära E6an och är därför väldigt lättillgänglig för snabb transpo... -
Bevaka dina sökningar
Spara dina sökningar och få mail när nya objekt dyker upp på marknaden
-
Möbelgatan 11Rävekärr, Mölndal, Mölndal80 - 160 m²KontorLager & logistik
Möjlighet att bygga er drömlokal!
-
Möbelgatan 11Rävekärr, Östra Mölndal, Mölndal162 m²Kontor
Trevligt kontor med balkong i välskött fastighet
-
Krokslätts Fabriker 34Krokslätt Mölndal, Mölndal1 500 m²Kontor
Modernt kontor i anrik industribyggnad på Krokslätts fabriker
-
Krokslätts Fabriker 38Krokslätt Mölndal, Mölndal180 m²Kontor
Superfin lokal i anrikt område
-
Flöjelbergsgatan 20BKrokslätt, Mölndal10 - 50 m²KontorKontorshotell & coworking
Flexibel kontorslösning med strategiskt läge utanför vägtull och mindre än 10 min från Korsvägen.
-
Krokslätts Fabriker 34Mölndal
1 500 m²KontorEtt perfekt kontor för det större moderna företaget!
-
Entreprenörsstråket 6Åbro, Mölndal
650 m²KontorEn fantastisk Vårdlokal i nybyggda GoCo som erbjuder en ypperlig möjlighet för er som vill etablera er i Sveriges life science-klustrer GoCo Health In
-
Krokslätts Fabriker 30Mölndal
1 000 m²KontorDenna lokal måste upplevas på plats! En fantastisk lokal i vacker anrik byggnad med stora industrifönster.
-

Kryptongatan 20Åbro, Mölndal325 m²KontorKontor i bra läge, var med och påverka invändigt!
Lokalen innehåller idag sju kontor och en del öppet landskap och ett pentry som ger dig all den komfort och funktionalitet du behöver. Behöver lokalen... -

Bergfotsgatan 5Lackarebäck, Mölndal576 m²Industri & verkstadKontorLager & logistikProduktionslokal med tillhörande kontor
Nu kan vi erbjuda en yteffektiv produktion-, verkstad- eller lagerlokal med kontorsyta. Ljus lokal med fönster åt två väderstreck. In- och utlastni... -
Taljegårdsgatan 3Göteborg, Mölndal124 m²Kontor
Ljus kontorslokal med härlig utsikt mot Göteborg.
Nu finns möjligheten att hyra flexibla kontorslokaler i Åbro företagsområde. Läget är strategiskt placerat för både pendlare och bilister. Välj mel... -

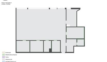
Neongatan 4 BÅbro, Mölndal227 m²Lager & logistikLagermöjlighet med port i markplan
Perfekt lageryta för er som är i behov av ett enkelare lager i bra läge. Det finns en innergård för smidig lastning/lossning. Innergården är avsedd fö...1000 kr/m²/år -
Norra Ågatan 26CMölndal15 - 40 m²Industri & verkstadFörrådsyta intill E6an
Nu finns möjligheten att hyra förråd om 15m² samt 40m² i vår fastighet på Norra Ågatan 26C. Ytorna är belägna i källarplan och lämpar sig bäst för för... -
Krokslätts Fabriker 32Centrum, Mölndal
190 m²KontorLjus lokal lämplig för kontor och utställning. Slående takhöjd, entresolplan samt öppen planlösning!
-
Entreprenörsstråket 10GoCo Health Innovation City, Mölndal1 650 m²Kontorshotell & coworking
Bli en del av vårt innovativa life science community på GoCo Health Innovation City.
-
Norra Forsåkersgatan 19Mölndals Kvarnby, Mölndal82 m²Kontor
-
Norra Ågatan 26CMölndal14 - 18 m²Kontorshotell & coworkingKontorshotell i Mölndal
Nu har du chansen att hyra ett kontor om 14-18kvm i vårt kontorshotell i Mölndals kommun. Alla hyresgäster har tillgång till pentry, wifi, wc samt bok... -
Idrottsvägen 14Mölndal, Mölndal35 m²KontorKontorshotell & coworking
C/O — Smarta kontorsytor som passar de flesta. Dela på mötesrum, kök och framförallt — affärsmöjligheter med andra.
För att möta behovet av flexibla kontor har vi byggt ytterligare en anläggning av vårt kontorshotelskoncept C/O i Mölndal. När du hyr kontorsrum hos ... -
Idrottsvägen 14Mölndal, Mölndal20 m²KontorKontorshotell & coworking
C/O — Smarta kontorsytor som passar de flesta. Dela på mötesrum, kök och framförallt — affärsmöjligheter med andra.
För att möta behovet av flexibla kontor har vi byggt ytterligare en anläggning av vårt kontorshottelskoncept C/O i Mölndal. När du hyr kontorsrum hos... -
Bergmansgången 5Centrum Mölndal, Mölndal270 m²Butik
Butikslokal med skyltläge i centrala Mölndal
-
Kryptongatan 7Göteborg, Mölndal500 m²Övrigt
Förråd och lager i Åbro Industriområde
-
Kryptongatan 7Mölndal, Mölndal1 000 m²KontorÖvrigt
Nybyggt i Åbro industriområde
-
Östergårdsgatan 2Mölndal / Riskulla, Mölndal355 m²Kontor
Nyproducerad kontorslokal i strategiskt läge utmed Söderleden
Kontorslokal om 355 kvm i nyproducerad byggnad (2021) redo att anpassas efter just era behov och önskemål. Kontorslokalerna anpassas i samråd med til... -
Kryptongatan 7Mölndal, Mölndal340 m²Kontor
Fräscht kontor i Åbro industriområde
-
Taljegårdsgatan 11Åbro, Mölndal1 075 m²Kontor
Ljus o fräsch kontorslokal granne med GoCo Health Innovation City

































.jpg&wm=416&hm=240&clip=1&us=0)
.jpg&wm=416&hm=240&clip=1&us=0)