Lediga lokaler i Falu, sida 2
- Äldre
-
Engelbrektsgatan 25Centrum, Falu38 m²KontorKontorshotell & coworkingCharmigt kontor i centralt kontorshotell – perfekt för nätverkande!
Välkommen till ett trevligt och charmigt kontorshotell där ni får mer än bara en arbetsplats – här blir ni en del av en inspirerande gemenskap! Detta... -

Åsgatan 23Centrum, Falu127 m²KontorÖvrigtSynligt, ljust och anpassningsbart - nu finns möjlighet att sitta på ett kontor i centralt gatuläge!
Nu finns chansen att skapa ett kontor i er egen stil! Denna ljusa och inbjudande lokal i gatuplan har stora skyltfönster mot livliga Åsgatan, vilket g... -
Södra Mariegatan 18Falu207 m²Kontor
Flexibla kontorslokaler som kan anpassas både i storlek och utformning efter din verksamhets behov.
-
Åsgatan 43Centrum, Falu116 m²Butik
Lokal om totalt ca: 116kvm varav 75kvm butiksyta och 41kvm parsonalyta.
Lokal om totalt ca: 116kvm varav 75kvm butiksyta och 41kvm parsonalyta. Anpassning av lokalen är möjlig utifrån tillträdande hyresgästs verksamhet....
-
Åsgatan 41Centrum, Falu257 m²Kontor
En fin lokal med äldre bevarade detaljer såsom stuckaturer och fiskbensparkett. Ca: 5 meter i takhöjd på huvudplan. Hiss finns i lokalen.
En fin lokal med äldre bevarade detaljer såsom stuckaturer och fiskbensparkett. Ca: 5 meter i takhöjd på huvudplan. Hiss finns i lokalen.
-
Västermalmsvägen 2Ingarvet, Falu
136 m²Industri & verkstadKontorLager & logistikLager / industrilokal med kontor och Pentry.
-

Stigaregatan 7BCentrum, Falu124 m²KontorLjus kontorslokal för det lilla teamet, nära stadens puls.
Välkommen till denna kontorslokal belägen på vån 2 med hiss i en charmig fastighet från 1929. Här möts du av en inspirerande miljö med generös takhö... -
Roxnäsvägen 3Roxnäs industriområde, Falu1 000 - 10 224 m²Industri & verkstad
Fin verkstadslokal (inkl.kök/WC/dusch) med höga dubbelportar i direkt anslutning till Runns strand. Stora inhägnade ytor för uppläggning.
Fin verkstadslokal i anrik tegelbyggnad för industri- eller verkstadsverksamhet. Yta i verkstad för motsvarande två stora fordon alternativt lager el...700 kr/m²/år -
Främbyvägen 20Falu
6 426 m²Lager & logistikLager/Logistik Främbyhallar
-
Slaggatan 6FCentrum, Falu189 m²Butik
Öppen lokal på Slaggatan 6F om totalt 189m².
Öppen lokal på Slaggatan 6F om totalt 189m². Lokalen är fördelad på 2 plan. Det övre planet lämpar sig i dagsläget som butikslokal och det nedre pla...
-

Östra Hamngatan 20Centrum, Falu104 m²KontorKontor i Falan med stor synlighet och möjlighet att förmedla budskap i fönstren mot gallerian!
Välkommen till en kontorslokal som kombinerar stil, ljus och en central position mitt i Falan gallerian. Passande för företag som värdesätter en kreat... -
Åsgatan 14-16Falu95 m²ButikKontorshotell & coworkingRestaurang & café
Lokal med toppenläge i centrala Falun!
-
Samuelsdalsvägen 10Samuelsdal, Falu200 m²Industri & verkstadÖvrigt
-

Holmgatan 22Centrum, Falu232 m²KontorCentralt kontor med privat terass i sydvästligt läge!
Letar ni efter ett kontor som förenar stil, funktionalitet och ett centralt läge? Då är denna lokal på Holmgatan perfekt för er! Med en rymlig arbetsy... -

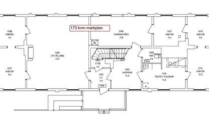
Trotzgatan 35Centrum, Falu173 - 350 m²KontorÖvrigtUnik och charmig lokal i anrikt timmerhus med kakelugnar
Välkommen till en lokal med karaktär och charm! I detta anrika timmerhus finns en unik möjlighet att hyra upp till 350 kvm fördelat på två våningar, p... -
Bevaka dina sökningar
Spara dina sökningar och få mail när nya objekt dyker upp på marknaden
-
Ingarvsvägen 2Ingarvet, Falu
250 m²KontorFin kontorslokal i bästa läge på Ingarvet- Falun.
-
Timmervägen 8Centralt, Falu80 - 1 700 m²Industri & verkstadKontorLager & logistik
-
Stallgränd 2Falu115 m²KontorLager & logistik
Kontorslokal på Stallgränd 2
-
Kaserngården 4Falu25 - 40 m²Kontorshotell & coworking
Kontorshotell på Kaserngården 4
-
Vallvägen 6 AFalu81 m²ButikKontorKontorshotell & coworking
Ljus och rymlig lokal i Falun!
-
Pelle Bergs Backe 3Falu611 m²Kontor
I denna fina nyrenoverade lokal om 611 kvm finns 18 kontorsrum i olika storlekar, tre mötesrum, reception, arkiv samt ett stort och luftigt lunch/fika...
-
Björkvägen 2Falun, Falu1 439 m²KontorKontorshotell & coworkingSkola, vård & omsorg
Lokal med många möjligheter att anpassa till just er verksamhet. Flexibel planlösning och bra läge i centrala Svärdsjö.
Fastigheten ligger centralt i Svärdsjö med mycket nära avstånd till mataffärer, bibliotek, apotek, öppen förskola m.m. I samma fastighet finns vårdce... -

Östra Hamngatan 20Centrum, Falu489 - 878 m²KontorLjus & rymlig kontorslokal högst upp ovan takåsarna!
Stig upp över stadens takåsar till en kontorslokal som erbjuder en unik atmosfär av ljus och rymd. Den rymliga layouten möjliggör alternativet att inr... -
Pelle Bergs Backe 3Falu740 m²Kontor
Anpassningsbara lokaler med ytor på ca. 200-700 kvm
-
Samuelsdalsvägen 10Samuelsdal, Falu400 m²Industri & verkstadKontorLager & logistik
-
Kontallsvägen 28Tallen, Falu340 m²Kontor
-
Skyfallsvägen 2Ingarvet, Falu
188 m²ButikKontorLager & logistikKontor/Lager på Ingarvet
-
Sundbornsvägen 4Hosjö, Falu19 m²KontorKontorshotell & coworkingLager & logistik
Nyrenoverat ljust kontor på 19 kvm uthyres på Sundbornsvägen i Hosjö
-
Gruvgatan 2Centrum, Falu340 m²KontorSkola, vård & omsorg
-
Ölandsgatan 5Falun, Falu264 m²Kontor
Kontorsfastighet i centrala Falun
-
Zettergrens väg 7Falu
289 - 463 m²KontorKontorshotell & coworkingÖvrigtFina kontorslokaler i bra läge på Ingarvet
-
Sundbornsvägen 4Hosjö, Falu30 m²KontorKontorshotell & coworking
Kontorsrum i olika storlekar, mellan 11 m2 upp till 30 m2.
-
Yxhammargatan 3Falu
825 m²ButikKontorLager & logistikButik eller kontor med lager
-
Rissgårdsvägen 11Ingarvet Industriområde, Falu500 - 6 000 m²Industri & verkstadKontorLager & logistik
Etablera er verksamhet i nyproducerade industrilokaler i Ingarvets industriområde. Lokalen byggs och anpassas helt efter era behov.
Chansen att etablera er verksamhet på ytor upp till 5000 LOA där vi skräddarsyr lokalerna åt er efter verksamhetens specifika behov. Ni har bland an... -
Västermalmsvägen 10Ingarvet, Falu
490 m²Industri & verkstadKontorLager & logistikLokal om 490 kvm, Lager/Produktion med personalutrymmen och kontor
-
Tryckerivägen 6Hälsingberg, Falu500 - 5 000 m²ButikIndustri & verkstadKontor
Lokaler lämpliga för olika typer av verksamheter. Skyltläge mot E16.
-
Ölandsgatan 10ACentralt, Falu15 m²KontorKontorshotell & coworking
-
Matsarvsvägen 21Ingarvet, Falu
263 m²Lager & logistikÖvrigtLagerlokal på Ingarvet
-
Myntgatan 18ACentrum, Falu490 m²Kontor
-

Nybrogatan 23Centrum, Falu306 - 687 m²KontorKontorslokal i Nordstan i Falun. Bra parkeringsmöjligheter.
Vår flexibla kontorslokal i Nordstan är den idealistiska platsen för er verksamhet att blomstra. Lokalen är idag totalt 687 kvm och här finns möjlighe...










































