Lediga förråds och lagerlokaler, sida 110
-
Stenbygatan 3Stenby/Finnslätten, Västerås3 436 - 36 000 m²Industri & verkstadKontorLager & logistik
Strategisk och flexibel logistikfastighet i Västerås – idealiska lokaler för lager, logistik och produktion!
Nu finns en modern och anpassningsbar logistikfastighet på 36 000 kvm tillgänglig för uthyrning. Med flexibla lager- och produktionsytor , kyl- oc... - Äldre
-
Hantverkaregatan 7Centrum, Emmaboda214 m²ButikKontorLager & logistik
-
Ekgårdsvägen 2Kungens Kurva, Huddinge738 m²ButikKontorLager & logistik
Fin kombilokal om 738 kvm uthyres med närhet till allt i Kungens Kurva!
Välkommen till Ekgårdsvägen 2! Här finns möjlighet att hyra kombilokal om totalt 738 kvm. Lokalen är uppdelad enligt: Butik: 559 kvm Lager: 179 kv... -
Bergsgatan 14BSödertälje, Södertälje21 - 50 m²KontorLager & logistikÖvrigt
Unik möjlighet att hyra flexibla förråd/lagerlokaler nära centrala Södertälje. Finns 2 separata lagerlokaler - möjlighet till uppdelning!
Två stycken utmärkta förråd/lagerlokaler, hyr valfritt antal. Lagerlokalerna har följande storlekar: 21 m2 29 m2 OMGIVNING Katten 8 består av t... -
Kämpevägen 33Ronna, Södertälje12 - 114 m²Industri & verkstadLager & logistikÖvrigt
Unik möjlighet att hyra mindre förråd/lagerlokaler nära centrala Södertälje. Finns fyra separata lagerlokaler - först till kvarn!
Fyra stycken utmärkta förråd/lagerlokaler, hyr valfritt antal. Lagerlokalerna har följande storlekar: 12 m2 23 m2 24 m2 45 m2 OMGIVNING Någon ... -
Varbergsvägen 34Borås, Borås300 - 10 816 m²Industri & verkstadKontorLager & logistik
Stor fastighet med många möjligheter - här finns det perfekta ytor för skola, kontor, etc.
Välkommen till Varbergsvägen 34! Här finner du ytor som passar utmärkt för skola, vård och kontor. Lokalerna har tidigare använts till gymnasieverks... -
Åkerbygatan 13Romberga, Enköping46 - 300 m²Industri & verkstadLager & logistikÖvrigt
Prisvärda lokaler centralt i Enköping med Egen port
Prisvärda lokaler centralt i Enköping med egna portar. Nu finns möjlighet att förhyra lokal i Myran/Romberga i Enköping. Lokalerna ligger mittemot M... -

Gamlestadsvägen 18 BGamlestaden, Göteborg524 m²KontorLager & logistikNybyggt kontor och showroom med port med parkeringsmöjligheter!
Välkommen till en ljus och flexibel lokal med både kontorsyta och en stor öppen yta som passar perfekt för showroom eller lager. Showroomet har direkt...1600 kr/m²/år -
Bragegatan 1Gamla Industriområdet, Kalmar450 m²Industri & verkstadLager & logistik
Ledig lokal i gamla industriområdet, nära Giraffen såväl som Kvarnholmen.
I gamla industriområdet i centrala Kalmar där Norden Machinery tidigare låg, finns nu denna lediga industri- eller lagerlokal att hyra. Till lokalen ... -

Kvartsgatan 1 CNorr, Enköping203 m²ButikIndustri & verkstadLager & logistikMöjlighet att hyra lager-/lättindustrilokal på populära Kvartsgatan!
Nu har ni chansen att hyra en flexibel och funktionell lager- eller lättindustrilokal i ett eftertraktat område. Lokalen erbjuder många möjligheter fö...
-
Vassgatan 3Hisingen, Göteborg3 455 m²Lager & logistik
Säkerhetsklassad yta i tre plan - 3455 kvm på Vassgatan! Markport och även lastbrygga finns!
Välkommen till Vassgatan 3! Här hittar du en säkerhetsklassad yta om totalt 3455 kvm. Här finns tre plan: Markplan - 1744 kvm Våning 1 - ca 600 kvm... -
Lantvärnsgatan 8Lamberget, Karlstad2 - 21 m²Lager & logistikÖvrigt
Förråd med hög säkerhet på Lamberget
Vi erbjuder fräscha, säkra förråd i olika storlekar för både privatpersoner och företag. Anläggningen är larmad och kameraövervakad dygnet runt. Tillt... -

Kungstorget 8Centrum, Helsingborg101 m²Lager & logistikFräscht omklädningsrum/ lager på Helsingborg C
På Helsingborg C finns nu tillfälle att hyra rymliga omklädningsrum i källarplan – utmärkt för medarbetare som behöver utrymme för att låsa in saker, ... -
Borrgatan 9Hamnen, Malmö2 021 m²Industri & verkstadKontorLager & logistik
Kontors- och lagerlokal på välplanerat läge i Malmö.
Ta chansen att placera er verksamhet med närhet till både city och motorled. Perfekt för företaget med kunder både i och utanför Malmö. Kontorsbyg... -
Löparstigen 13Hyltebruk, Hylte103 m²Lager & logistikRestaurang & caféÖvrigt
Lokal med öppen planlösning
Kontor, gym eller massagemottagning? På Löparstigen 13 finns det nu möjlighet att hyra denna 103 kvm stora lokal som passar för de flesta verksamhete... -
Industrivägen 4Söndrums industriområde, Halmstad846 m²Industri & verkstadLager & logistik
Hyr lager/produktion på Söndrums industriområde
Letar ni nya lagerytor? På Industrivägen 4 i Söndrums Industriområde står nu 846 kvm lager/produktion ledigt att hyra. Lokalen är belägen en avfart ... -
Favoritmarkera och jämför annonser
Favoritmarkera dina fynd och jämför enkelt dessa när du är inloggad
-
Idögatan 30 BTorvinge, Linköping137 m²Industri & verkstadKontorLager & logistik
Nyproducerade yteffektiva lokaler
Nyproducerade hyreslokaler i Tallboda industriområde. Lokaler passande de flesta typer av företag. Allt från e-handelsbolag till lättindustri och lage... -
Kristinehedsvägen 24sannarps industriområde, Halmstad250 - 3 280 m²ButikIndustri & verkstadKontor
Nyproduktion i populärt industriområde
I det populära Sannarps industriområde finns det nu möjlighet att hyra in sig i nya fina lokaler som byggs enligt era önskemål. I området finns det g... -
Norra Kringelvägen 44Ljungdala, Hässleholm1 350 m²ButikIndustri & verkstadKontor
På bästa inomläge i Hässleholm, mittemot nyöppnade Biltema, finns möjlighet att etablera volymhandel.
-
Västbovägen 51CHornaryd, Värnamo670 m²ButikIndustri & verkstadLager & logistik
-
Munksjögatan 10Vaggeryd, Vaggeryd1 200 - 90 000 m²Industri & verkstadKontorLager & logistik
Vaggeryd Logistikpark är ett nytt logistiknav i södra Sverige, 20 min söder om Jönköping. Här finns ca 120 000 Kvm byggbar bruttoarea. Upp till 20 MW!
-
Verkstadsgatan 4Kunskapsporten Svedala Ett AB, Svedala413 m²KontorLager & logistik
Nära till motorvägen ca 15 minuter ifrån Malmö ligger denna lokal, med stora möjligheter.
-
Munksjögatan 8Vaggeryd Logistikpark, Vaggeryd1 000 - 12 253 m²Industri & verkstadLager & logistik
Nyproducerade lokaler med 8,5 meter i takhöjd. Markport. Upp till 20 MW!
-
Trädgårdsgatan 16Malmen, Kalmar100 m²KontorLager & logistik
Trivsam kontorslokal om 100 m2 på Malmen i centrala Kalmar
-
Servicegatan 5Skellefteå
3 450 m²Industri & verkstadLager & logistikModern industri- & lagerlokal med kontor
-
Norrsågsvägen 47Bergnäset, Luleå340 m²Industri & verkstadKontorLager & logistik
-
Varggatan 19Enköping, Enköping4 000 - 18 000 m²Industri & verkstadLager & logistik
-
Transportgatan 4Pilängen/Bista, Örebro10 - 1 000 m²KontorKontorshotell & coworkingLager & logistik
-
Kosterögatan 15Östra Hamnen, Malmö469 m²ButikKontorKontorshotell & coworking
Varmt välkomna till nyrenoverade lokaler i anrika Tobaksfabriken!
Nu har vi nöjet att presentera nyrenoverade lokaler för showroom, kontor och lager i den nya Tobaksfabriken i Östra Hamnen. Lokalerna har renoverats ... -
Sliperigatan 3östra industri, Landskrona500 - 725 m²Industri & verkstadKontorLager & logistik
fritt beläggen fastighet som har alla förutsättningar att klara både små behov som stora behov i maskiner och transporter och personal.
Fastigheten är utrustad med flera brandzoner som avskiljs med stabila gångdörrar i stål . Dessa förbinder både verkstaden och garage inomhus och även...550 kr/m²/år -

Lommavägen 39Burlöv2 635 m²Lager & logistikLager på bra logistikläge
Lagerlokal med en fri takhöjd på 7 meter och markport. Här har vi möjlighet att erbjuda ett flexibelt hyresavtal om du exempelvis har ett behov av e... -
Nydalavägen 3Nydala, Vetlanda750 m²Industri & verkstadLager & logistik
Anpassningsbar lokal med bra läge vid infart utmed väg 31.
Lokalen består av en större yta som passar både som lager och lättare industri. Till lokalen finns en del med 2 st kontor samt wc. Möjlighet finns t... -
Vintergatan 1Agneshögs verksamhetsområde, Motala700 m²KontorLager & logistik
Flexibel lokal med utvecklingsmöjligheter.
Lager- och lätt industrilokal med tillhörande kontorsdel samt personalutrymmen. Lokalen utgörs totalt av cirka 700 kvm fördelat på 350 kvm yta för l... -
Ekslingan 7Väla, Helsingborg654 m²KontorLager & logistik
Stor och fräsch lokal i Helsingborg uthyres!
Lokalerna är ljusa, mycket trevliga och i fint skick. De är idag fördelade på både öppna ytor och cellkontor i varierande storlekar. Planlösningen är... -
Däcksbrogatan 14Södertälje, Almnäs/Stockholm S, Södertälje2 000 m²Industri & verkstadLager & logistikÖvrigt
Verksamhetslokaler med lägsta möjliga CO2–utsläpp
Fastigheten har en markareal om 3 820m² med en byggnad om ca 2 000 m², varav ca 25% utgörs av kontor/personalutrymmen samt extra lagerutrymme på entr... -

Garnisonsgatan 10Berga, Helsingborg456 m²ButikKontorLager & logistikKontorslokal med stort showroom/lager på Berga
Kontorslokal med egen entré och parkering utanför dörren. Inne i lokalen finns stor yta som kan användas som showroom, lager eller butik. Längre bak i... -

Skalholtsgatan 6-8Kista, Stockholm700 - 7 292 m²Industri & verkstadKontorLager & logistikEgen kontorsfastighet med möjlighet till lager alternativt produktionsytor
Här finns möjligheten att etablera er i ett av Stockholms bästa skyltlägen! Lokalen erbjuder stor flexibilitet för verksamheten och en bra kombinat... -

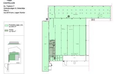
Gränsbovägen 8Södertälje, Södertälje2 574 m²Industri & verkstadLager & logistikUnik industrifastighet nära E4:an
Välkommen till denna välplanerade lager- och produktionslokal om ca 2 574 kvm, strategiskt placerad i ett attraktivt industriområde på Gränsbovägen 8 ... -
Västberga allé 9Västberga industriområde, Stockholm1 693 m²Industri & verkstadKontorLager & logistik
Välkommen till Västberga allé 9, nu finns möjlighet att hyra kontorslokal och lagerlokal i samma fastighet!
Välkommen till Västberga Allé 9! Den här lokalen har stora fönster med fint ljusinsläpp och det finns även möjlighet att göra om lokalen till kontor... -
Krossvägen 3Storheden, Luleå5 000 m²Industri & verkstadLager & logistik
Större hyresgäst/köpare sökes till Storheden i Luleå - Sista chansen att utveckla nya lokaler i ett av Norrlands mest expansiva handelsområden
Hyresgäst eller köpare sökes till Storhedens sista större tomter på 5 - 15 000 kvm industrimark som finns tillgänglig för etablering. Werkstaden Fast...1500 kr/m²/år -
Sturkögatan 9Hamnen, Malmö1 202 m²KontorLager & logistik
Hyr 200 kvm lager i anslutning till kontorsytor om 1000 kvm.
Här finns det möjlighet att hyra en hel kontorsfastighet om 1000 kvm och anpassa precis som ni önskar. Det finns 200 kvm höglager i anslutning. Det ...






















