Birger Jarlsgatan 12

Stockholm
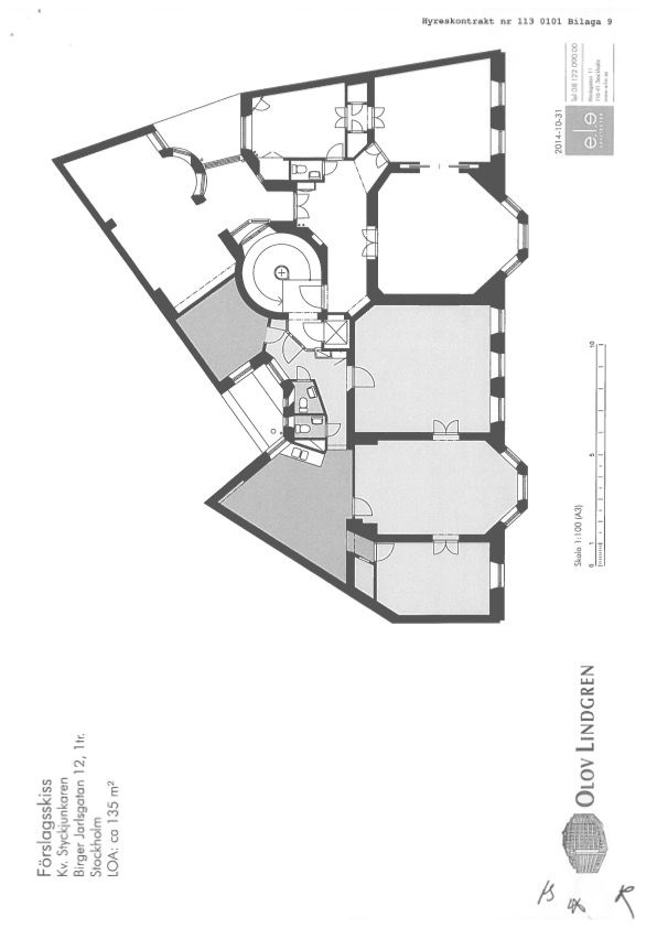
Planskiss

Yta

135 m²

Hyra

Tillträde

Enligt överenskommelse

Beskrivning

  • Kontor

Representativt kontor mellan Nybroplan och Stureplan.

Trevligt kontor i en välhållen och representativ fastighet med fina originaldetaljer och genomgående gott skick. Lokalen har tre större rum i fil ut, med fönster ut mot Birger Jarlsgatan och ett bra ljusinsläpp. I lokalen finns även ett fräscht pentry med tillhörande matplats/loungedel samt 2 WC varav en med dusch. Överlåtelse av befintligt avtal med attraktiv hyresnivå! Avtalet löper till 2027-09-30 alt finns möjlighet att skriva ett nytt avtal direkt med hyresvärden. Välkommen på visning!

Ytor

  • Total yta:

    135 m2

Ekonomi

Tillträde:

Enligt överenskommelse

Utförande

Fastighetsbeteckning:

Styckjunkaren 6

Byggår:

1897

Renoveringsår:

1998

Våningsplan:

1 av 6

Dokument

Teknisk information

Ventilation:

Mekanisk ventilation

Omgivning

Närservice:

All tänkbar service utanför dörren.

Kommunikationer

T-bana: Östermalmstorg Tvärbana: T-centralen Bussar: Flertalet bussar kring Stureplan, Östermalmstorg Pendeltåg: T-centralen

Birger Jarlsgatan 12

Om New Property AB

New Property är en ledande fastighetsrådgivare med ett heltäckande erbjudande från uthyrning till transaktion. Vi är den största uthyraren i Stockholm och möjliggör fastighetstransaktioner över hela Sverige. Vi har ett nytt sätt att se på fastighetsrådgivning som bygger på de förtroendefulla relationerna vi skapar, bekräftat i det stora antalet återkommande kunder. För oss står alltid kunden i centrum. Vi är länken mellan fastighetsägare och hyresgäster - säljare och köpare. Vi är experter på uthyrning, fastighets- och investeringsrådgivning. Vårt dedikerade team har gedigen erfarenhet, marknadsinsikt och engagemang av att skapa bestående värden för våra kunder. New Property grundades 2005, och har vuxit genom organisk tillväxt till att idag vara ett partnerägt bolag med ett team av 30 erfarna fastighetsrådgivare.

New Property AB

Nybrogatan 39

114 39 Stockholm

www.newproperty.se

Fler annonser från New Property AB