Drottninggatan 95A

Stockholm
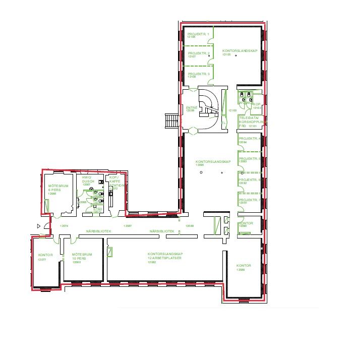
Planskiss

Yta

664 m²

Hyra

Tillträde

Enligt överenskommelse

Beskrivning

  • Kontor

Unik lokal i anrik fastighet

Högt i tak, stora fönster och yteffektivt. Detta drömkontor har en bra blandning av mötesrum, arbetsplatser och plats för stora samlingar. Öppna kontorslandskap med härlig rymd. Några mindre mötesrum/enskilda rum kombinerat med större konferensrum. Två möjliga entréer. Ett mycket trevligt kontor i en anrik fastighet med härlig karaktär. Lokalerna anpassas i samråd med ny hyresgäst.

Ytor

  • Total yta:

    664 m2

Ekonomi

Tillträde:

Enligt överenskommelse

Utförande

Fastighetsbeteckning:

Drottninggatan 95A

Byggår:

1894

Renoveringsår:

2008

Våningsplan:

1 av 4

Teknisk information

Ventilation:

Mekanisk från- och tilluft med kyla.

Omgivning

Närservice:

Stort utbud av restauranger och kaféer, god service på Drottninggatan och Sveavägen samt kring Odenplan.

Kommunikationer

T-bana: Rådmansgatan och Odenplan Bussar: Flertalet bussar Tvärbana: Odenplan Fjärrtåg: Odenplan Trafikleder: DU tar dig snabbt ut på lederna Pendeltåg: Odenplan

Drottninggatan 95A

Om New Property AB

New Property är en ledande fastighetsrådgivare med ett heltäckande erbjudande från uthyrning till transaktion. Vi är den största uthyraren i Stockholm och möjliggör fastighetstransaktioner över hela Sverige. Vi har ett nytt sätt att se på fastighetsrådgivning som bygger på de förtroendefulla relationerna vi skapar, bekräftat i det stora antalet återkommande kunder. För oss står alltid kunden i centrum. Vi är länken mellan fastighetsägare och hyresgäster - säljare och köpare. Vi är experter på uthyrning, fastighets- och investeringsrådgivning. Vårt dedikerade team har gedigen erfarenhet, marknadsinsikt och engagemang av att skapa bestående värden för våra kunder. New Property grundades 2005, och har vuxit genom organisk tillväxt till att idag vara ett partnerägt bolag med ett team av 30 erfarna fastighetsrådgivare.

New Property AB

Nybrogatan 39

114 39 Stockholm

www.newproperty.se

Fler annonser från New Property AB