Återbruksvägen 11, Mellringe
Exteriör - Ingång till vänster om byggnaden
Utrymme med möjlighet att hänga kläder eller förvara saker.

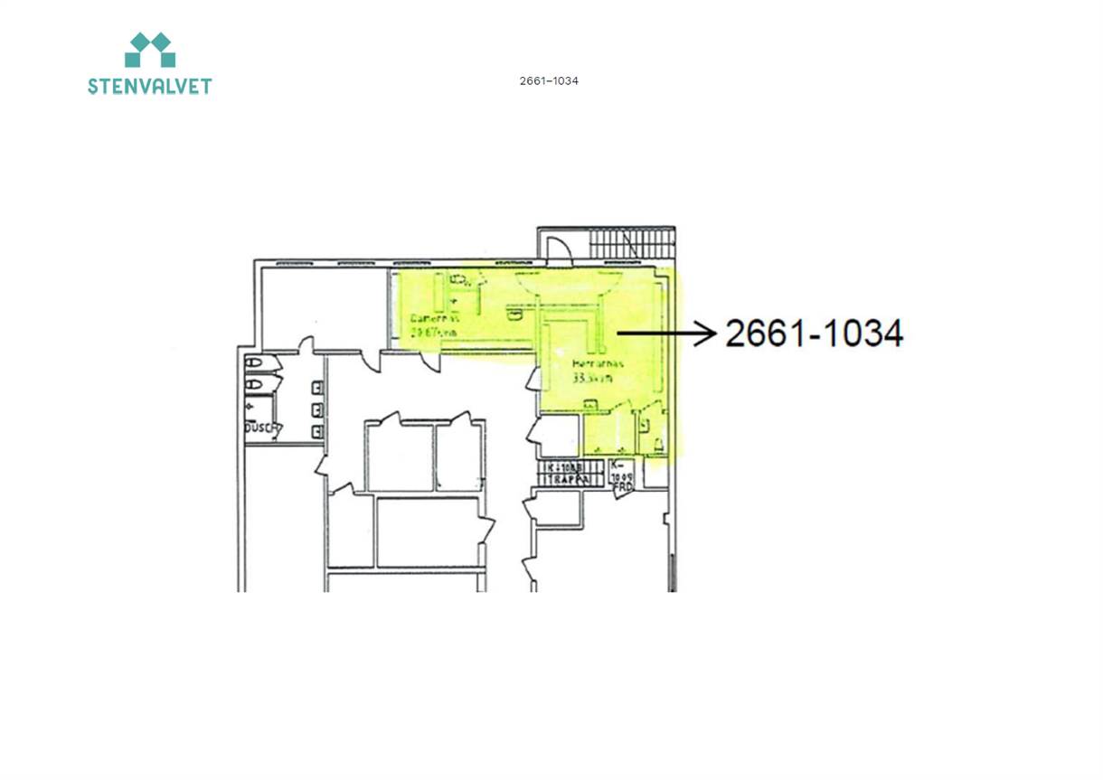
Planlösning
Mellringeområdet
Exteriör - Ingång till vänster om byggnaden
Utrymme med möjlighet att hänga kläder eller förvara saker.

Planlösning
Mellringeområdet
Objektvision AB respekterar din integritet och rätten att ha kontroll över dina personuppgifter. Våra vägledande principer är enkla. Vi kommer att vara öppna med vilka data vi samlar in och varför samt skydda dina data.
I Objektvisions policy för personuppgifter beskrivs vilka uppgifter vi samlar in, i vilket syfte de samlas in, på vilket sätt du kan ha kontroll över dina egna uppgifter samt hur du kan kontakta oss. Denna personuppgiftspolicy gäller när du använder appar, webbsidor och tjänster som ingår under en app eller på en webbplats som administreras av Objektvision. Objektvision är personuppgiftsansvarig i enlighet med dessa villkor och ansvarar för att behandling sker enligt gällande lagstiftning.
Objektvision inhämtar uppgifterna i första hand direkt från dig som kund. Som kund menas både dig som användare och som annonsör. Objektvision registrerar personuppgifter i samband med:
Objektvision behandlar personuppgifter i huvudsak för de ändamål som anges nedan samt för de eventuella ytterligare ändamål som anges vid insamlingstidpunkten:
Vi kan dela med oss av information till andra företag som behandlar data på våra vägnar för att vi ska kunna utföra våra tjänster, t.ex. analys, distribution eller andra tjänster för att upprätthålla och tillämpa våra användarvillkor och leveransvillkor. Vid all hantering av personuppgifter iakttas dock alltid hög säkerhet och sekretess.
Objektvision samarbetar endast med partners som behandlar personuppgifter inom EU/EES eller med företag som upprätthåller samma skyddsnivå som inom EU/EES genom att t.ex. ha anslutit sig till den s.k. Privacy Shield överenskommelsen mellan EU och USA.
Vid intresseanmälan skickas informationen vidare till tredje part för att fullgöra beställningen av tjänsten. Objektvision sparar informationen som längst i fyra år och informationen raderas därefter automatiskt.
När du använder vår webbplats och app kan det hända att personuppgifter samlas in via t.ex. cookies. Detta görs dock endast via ett separat samtycke. Då lagras informationen om din användning och vilka sidor som besöks. Det kan vara teknisk information om din enhet och internetuppkoppling såsom operativsystem, webbläsarversion, IP-adress, cookies och unika identifierare. Vid besök på våra webbplatser där våra tjänster tillhandahålls, kan olika tekniker användas för att känna igen dig i syfte att lära oss mer om våra användare. Detta kan ske direkt eller genom användning av teknik från tredje part.
I och med att du lämnar uppgifter till Objektvision ger du din tillåtelse till att Objektvision registrerar och lagrar uppgifter om vilken tjänst du använder samt behandlar de angivna personuppgifterna för angivna ändamål. Som legal grund för behandling kommer Objektvision att hänvisa till uppfyllande av policydokument och berättigat intresse i de syften som angetts ovan.
Behandlingen sker enligt gällande lagstiftning och innebär att personuppgifter inte bevaras under en längre tid än vad som är nödvändigt med hänsyn till ändamålen med behandlingen. Objektvision kommer att lagra dina personuppgifter så länge du är kund hos oss. Du är kund hos Objektvision så länge du har ett aktivt konto. I marknadsföringssyfte används inte information som är äldre än fyra år. Detta innebär rent praktiskt att uppgifter gallras ut då de inte längre är aktuella eller nödvändiga för analyser eller direktmarknadsföring för de ändamål som de har samlats in för. Viss information kan behållas längre då det krävs så pga andra lagkrav, som exempelvis bokföringslagen. Vid all hantering av personuppgifter iakttas dock alltid hög säkerhet och sekretess.
Du har rättigheter när det gäller dina personuppgifter och du har möjlighet att påverka din information och vad som sparas. Företaget kommer på eget eller kundens initiativ att rätta uppgifter som upptäcks vara felaktiga. Du kan även närsomhelst begära att dina uppgifter raderas eller att dess användning begränsas genom att kontakta oss (för kontaktvägar se rubriken Så kontaktar du oss). Om du anser att dina rättigheter inte respekteras av oss får du gärna kontakta Objektvision eller så kan du höra av dig till Integritetsskyddsmyndigheten.
Du kan när som helst avstå från att ta emot marknadsföringskommunikation från oss genom att klicka på avanmälningslänken i epostkommunikation som vi skickar dig. Du är alltid välkommen att kontakta vår kundtjänst för att få hjälp att tacka nej till vår kommunikation.
Du kan erhålla information om vilka personuppgifter som är registrerade, genom att skriftligt begära ett så kallat registerutdrag från Objektvision AB.
I händelse av att vår webbplats innehåller länkar till tredje parts webbplatser, hemsidor, eller material publicerat hos tredje part, är dessa länkar endast för informationssyfte. Eftersom Företaget saknar kontroll över innehållet på dessa webbplatser eller dess material ansvarar vi därför inte för dess innehåll. Företaget ansvarar inte heller för skador eller förluster som skulle kunna uppstå vid användning av dessa länkar.
För ytterligare information om personuppgiftshantering eller om du har frågor, är du välkommen att kontakta oss på:
Objektvision AB
Skeppsbrogatan 47
392 31 Kalmar
Vx: 0480-47 75 60
E-post:
Denna privacy policy gäller från och med 2018-05-22
Dessa villkor tillämpas vid avtal mellan Objekt Vision AB, org.nr 556543-3447, Skeppsbrogatan 47, 392 31 Kalmar ("Objektvision") och fysisk eller juridisk person ("Kunden") avseende annonsering eller på annat sätt användning av de tjänster som tillhandahålls av Objektvision på objektvision.se. Det noteras att avtal mellan Objektvision och Kunden uppstår genom Kundens påbörjade användning av tjänsterna på objektvision.se samt att närmare villkor för de tjänster som tillhandahålls på objektvision.se återfinns på objektvision.se under Våra produkter och i förekommande fall i andra skriftliga överenskommelser mellan Objektvision och Kunden.
Äganderätt, upphovsrätt och annan immateriell rättighet till tjänsterna på objektvision.se innehas av Objektvision, om inget annat anges. Kunden ansvarar för att samtliga rättigheter – t.ex., men inte begränsat till, upphovsrätten till bilder och texter – innehas, får användas och får publiceras av Kunden och ansvarar även i övrigt i alla avseenden för det material som denne offentliggör på objektvision.se. Kunden åtar sig att hålla Objektvision skadeslöst för all skada vid eventuell publicering av material, som tillhandahållits av Kunden och som utgör intrång i tredje mans rättigheter eller som på annat sätt innebär skada för Objektvision.
Näringsidkare i form av fastighetsägare/mäklare och professionella förmedlare kan annonsera på objektvision.se.
Kunden är skyldig att följa vid var tid gällande annonspolicy.
Om Kunds annons och/eller innehållet i annonsen är i strid med annonspolicyn ska Kunden omedelbart och på eget initiativ korrigera informationen, så att den inte strider mot policyn. Om sådan korrigering inte sker, har Objektvision rätten att, utan föregående kommunikation med Kunden, neka, justera eller radera den aktuella annonsen, Kundens andra annonser och/eller Kundens konto utan att Kunden har rätt till ersättning för eventuell skada eller uppkommen kostnad, inbegripet men inte begränsat till kostnad för nekad, justerad eller raderad annons.
Objektvision har rätt att sprida Kundens annons, eller delar av Kundens annons, i tredje parts marknadsföringskanaler för att maximera annonsens spridning eller för att marknadsföra Objektvision. Denna rätt gäller även Kundens inaktiva annonser och härutöver även efter det att avtalsförhållandet mellan Kunden och Objektvision har avslutats. Exempel på marknadsföring genom tredje part innefattar bland annat, men inte uteslutande, spridning via Objektvision:s konton på Facebook, Instagram och LinkedIn.
Spridning av Kundens annons enligt denna klausul får utföras utan Kundens samtycke om den inte innebär någon extra kostnad för Kunden.
Spridning av Kundens annons enligt denna klausul kan inte föranleda rätt till ersättning för Kunden.
Genom att publicera en annons på objektvision.se ger Kunden Objektvision en obegränsad rätt att fritt förfoga över all information – och därtill hörande rättigheter - i annonsen och att relatera till Kundens annonsering på objektvision.se, genom att t.ex. för statistiska ändamål bearbeta, lagra, kopiera sådan information och göra den tillgänglig för allmänheten samt att överlåta eller vidareupplåta informationen och därtill hörande rättigheter till tredje part. Denna rätt gäller även efter det att avtalsförhållandet mellan Kunden och Objektvision har avslutats.
Objektvisions användning av information enligt denna klausul får utföras utan Kundens samtycke och kan inte föranleda någon rätt till ersättning för Kunden.
Objektvision använder sig av cookies för inhämtning av information till statistikverktyg. Närmare redogörelse för Objektvisions hantering av cookies återfinns under Objektvisions Cookie-hantering.
Kunden debiteras enligt Objektvision vid var tid gällande prislista. För god ordnings skull noteras härvid att Kunder, som tidigare träffat separat avtal med Objektvision avseende visst annonspaket, vid nämnda avtals upphörande likväl debiteras enligt Objektvisions nyss nämnda vid var tid gällande prislista. Ändringar i prislistan ska aviseras minst fyra veckor innan de träder i kraft.
Kunden debiteras för det sammanlagda antalet unika aktiva annonser under en kalendermånad. Objektvision äger därvid rätt att i prishänseende hantera varje återpublicerad annons som en ny aktiv annons.
Fakturering av annonser och tilläggstjänster sker månadsvis i efterskott. Betalningsvillkor är 30 dagar netto. För det fall Kunden önskar pappersfaktura tillkommer fakturaavgift om 75 kronor per sådan faktura. Vid försenad betalning debiteras påminnelseavgift och dröjsmålsränta enligt räntelagen.
Om inte annat skriftligen har överenskommits ska uppsägning ske senast fyra veckor före avtalsperiodens slut. För det fall sådan uppsägning inte sker förnyas avtalet till att gälla ytterligare en avtalsperiod.
Vid störning eller annan försämring av tjänsten åligger det Kunden att omgående meddela Objektvision. Bolaget skall då vidta lämplig åtgärd för att snarast åtgärda felet.
Objektvision har rätt att ändra villkoren i dessa allmänna villkor och tillhörande annonspolicy utan Kundens samtycke om ändringen inte är att betrakta som betungande för Kunden, varpå ändringen träder ikraft omedelbart vid publicering av de uppdaterade villkoren på https://objektvision.se/villkor eller genom att Kunden på annat sätt informeras om villkorsändringen.
I övriga fall äger Objektvision rätt att ändra villkoren i dessa allmänna villkor och tillhörande annonspolicy genom att senast sex veckor innan villkorsändringen träder i kraft informera Kunden om villkorsändringen. Om Kund önskar att inte bli bunden av de nya villkoren ska Kunden – med beaktande av för Kunden gällande uppsägningstid - meddela Objektvision om uppsägning av avtalsförhållandet så att avtalet mellan Objektvision och Kunden upphör före villkorsändringens ikraftträdande. Fortsatt användande av tjänsterna på objektvision.se efter ändrade villkors ikraftträdande innebär ett accepterande av de nya villkoren.
Kund ansvarar för och åtar sig att löpande hålla sig informerad om innehållet i dessa allmänna villkor och tillhörande annonspolicy genom att kontinuerligt besöka https://objektvision.se/villkor och https://objektvision.se/policy.
Objektvision ansvarar inte för Kundens direkta eller indirekta skador eller förluster som uppkommer som en följd av annonsering på objektvision.se, inbegripet Objektvisions spridning av annons enligt klausul 5 och användning av information enligt klausul 6 i dessa allmänna villkor.
De tjänster och den information som inhämtas via statistikverktyg redovisas och tillhandahålls utan några garantier om statistikinformationens exakthet, pålitlighet och fullständighet.Objektvision kan inte hållas ansvarigt för direkta eller indirekta kostnader, förluster eller annan skada som kan komma att uppstå på grund av användning av avläsbara resultat och slutsatser från statistikverktyg.
Med indirekt förlust enligt ovan avses till exempel förlorad vinst, omsättningsbortfall, avbrott i verksamheten.
Objektvision lagrar personuppgifter som Objektvision kan komma att hantera i samband med kunds annonsering eller användares användning av statistikverktyg i enlighet med den nya Dataskyddsförordningen (GDPR). Närmare redogörelse för Objektvisions hantering av personuppgifter återfinns i Objektvisions personuppgiftspolicy.
Kalmar
Skeppsbrogatan 47
392 31 Kalmar
Stockholm
Norrlandsgatan 10
111 43 Stockholm
Kundservice
kundservice@objektvision.se
Tel: +46(0)480 47 75 60
Teknisk Support
support@objektvision.se
Tel: +46(0)480 47 75 50
Om inte annat skriftligen överenskommits ska svensk lag ska tillämpas på dessa allmänna villkor och tillhörande annonspolicy. Vid tvist avseende tillämpning eller tolkning av villkoren i dessa allmänna villkor eller tillhörande annonspolicy ska tvisten, om inte annat skriftligen överenskommits, avgöras av allmän domstol.