Hudiksvallsgatan 6

Stockholm
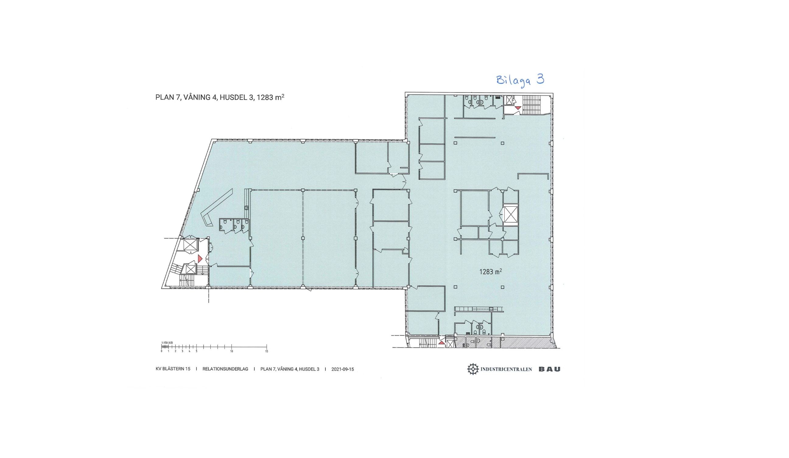
Planskiss

Yta

1 283 m²

Hyra

Tillträde

Omgående eller enligt överensk

Beskrivning

  • Kontor

Industriell kontorslokal med bra ljusinsläpp i en ball miljö!

Välkommen till en unik kontorslokal med industriell charm! Här får du en inspirerande arbetsmiljö där råa material som synliga rör, stora fönster och högt i tak kombineras med moderna funktioner för att skapa en dynamisk och kreativ atmosfär. Lokalen om 1 283 kvm erbjuder öppna ytor och goda möjligheter för flexibel planlösning, vilket gör den perfekt för företag som värdesätter både design och funktionalitet. Det finns även två entréer, med lasthiss vid bägge upp till lokalen. Fastigheten är belägen i Vasastan med närhet till både kommunikationer och bra service, vilket gör den lättillgänglig för både medarbetare och kunder. Kontorslokalen passar perfekt för kreativa företag som söker en inspirerande och funktionell arbetsmiljö. Välkommen att boka en visning och upplev denna fantastiska kontorslokal!

Ytor

  • Total yta:

    1283 m2

Ekonomi

Tillträde:

Omgående eller enligt överensk

Utförande

Fastighetsbeteckning:

Hudiksvallsgatan 6

Byggår:

1930

Renoveringsår:

2015

Våningsplan:

3 av 6

Dokument

Teknisk information

Ventilation:

Mekanisk ventilation med kyla

Omgivning

Närservice:

Hudiksvallsgatan 6 ligger i det expansiva området Hagastaden i Stockholm, där ett rikt serviceutbud finns i gatuplan. I närområdet finns flera restauranger, caféer och takbarer som erbjuder varierande matalternativ och sociala mötesplatser. Flera gymkedjor, inklusive ett med utomhusgym på taket med utsikt över stadens skyline, finns också i området. Dessutom finns flera 4-stjärniga hotell och välrenommerade livsmedelsbutiker.

Kommunikationer

T-bana: Grön linje från Sankt Eriksplan/Odenplan. Bussar: Flera bussar som stannar i närheten samt buss nr 3 som stannar runt hörnet. Pendeltåg: Pendeltåg från Odenplan

Hudiksvallsgatan 6

Om New Property AB

New Property är en ledande fastighetsrådgivare med ett heltäckande erbjudande från uthyrning till transaktion. Vi är den största uthyraren i Stockholm och möjliggör fastighetstransaktioner över hela Sverige. Vi har ett nytt sätt att se på fastighetsrådgivning som bygger på de förtroendefulla relationerna vi skapar, bekräftat i det stora antalet återkommande kunder. För oss står alltid kunden i centrum. Vi är länken mellan fastighetsägare och hyresgäster - säljare och köpare. Vi är experter på uthyrning, fastighets- och investeringsrådgivning. Vårt dedikerade team har gedigen erfarenhet, marknadsinsikt och engagemang av att skapa bestående värden för våra kunder. New Property grundades 2005, och har vuxit genom organisk tillväxt till att idag vara ett partnerägt bolag med ett team av 30 erfarna fastighetsrådgivare.

New Property AB

Nybrogatan 39

114 39 Stockholm

www.newproperty.se

Fler annonser från New Property AB