Nybrogatan 55

Stockholm
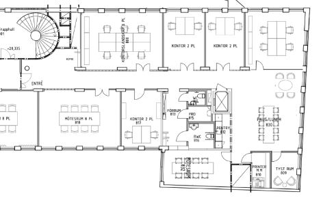
Planskiss

Yta

330 m²

Hyra

Tillträde

Omgående eller enligt överensk

Beskrivning

  • Kontor

Kontor med extra allt!

Ett mycket påkostat kontor med putsade betongväggar, rostfria fondväggar och mycket exklusiva mattor. Den välkomnande entrén ligger i början av lokalen, följt av storrumskontor och blandade storlekar på mötesrum. Idag har lokalen ca 46 arbetsplatser men går att förtäta upp till ca 55 arbetsplatser. Entrén till huset har en trevlig lounge och i källarplan finns det ett medlemsgym. Garage finns, platser hyrs ut via Parkando. En lokal som måste ses! Välkomna på visning! Hela huset totalrenoverades 2022.

Ytor

  • Total yta:

    330 m2

Ekonomi

Tillträde:

Omgående eller enligt överensk

Utförande

Fastighetsbeteckning:

Nybrogatan 55

Byggår:

1956

Renoveringsår:

2021

Våningsplan:

6 av 9

Dokument

Teknisk information

Ventilation:

Mekanisk ventilation med kyld tilluft

Omgivning

Närservice:

All tänkbar service finns i närområdet, butiker, restauranger, Sturegallerian m.m.

Kommunikationer

T-bana: Östermalmstorg - röd linje

Nybrogatan 55

Om New Property AB

New Property är en ledande fastighetsrådgivare med ett heltäckande erbjudande från uthyrning till transaktion. Vi är den största uthyraren i Stockholm och möjliggör fastighetstransaktioner över hela Sverige. Vi har ett nytt sätt att se på fastighetsrådgivning som bygger på de förtroendefulla relationerna vi skapar, bekräftat i det stora antalet återkommande kunder. För oss står alltid kunden i centrum. Vi är länken mellan fastighetsägare och hyresgäster - säljare och köpare. Vi är experter på uthyrning, fastighets- och investeringsrådgivning. Vårt dedikerade team har gedigen erfarenhet, marknadsinsikt och engagemang av att skapa bestående värden för våra kunder. New Property grundades 2005, och har vuxit genom organisk tillväxt till att idag vara ett partnerägt bolag med ett team av 30 erfarna fastighetsrådgivare.

New Property AB

Nybrogatan 39

114 39 Stockholm

www.newproperty.se

Fler annonser från New Property AB