Krukmakargatan 34

Södermalm
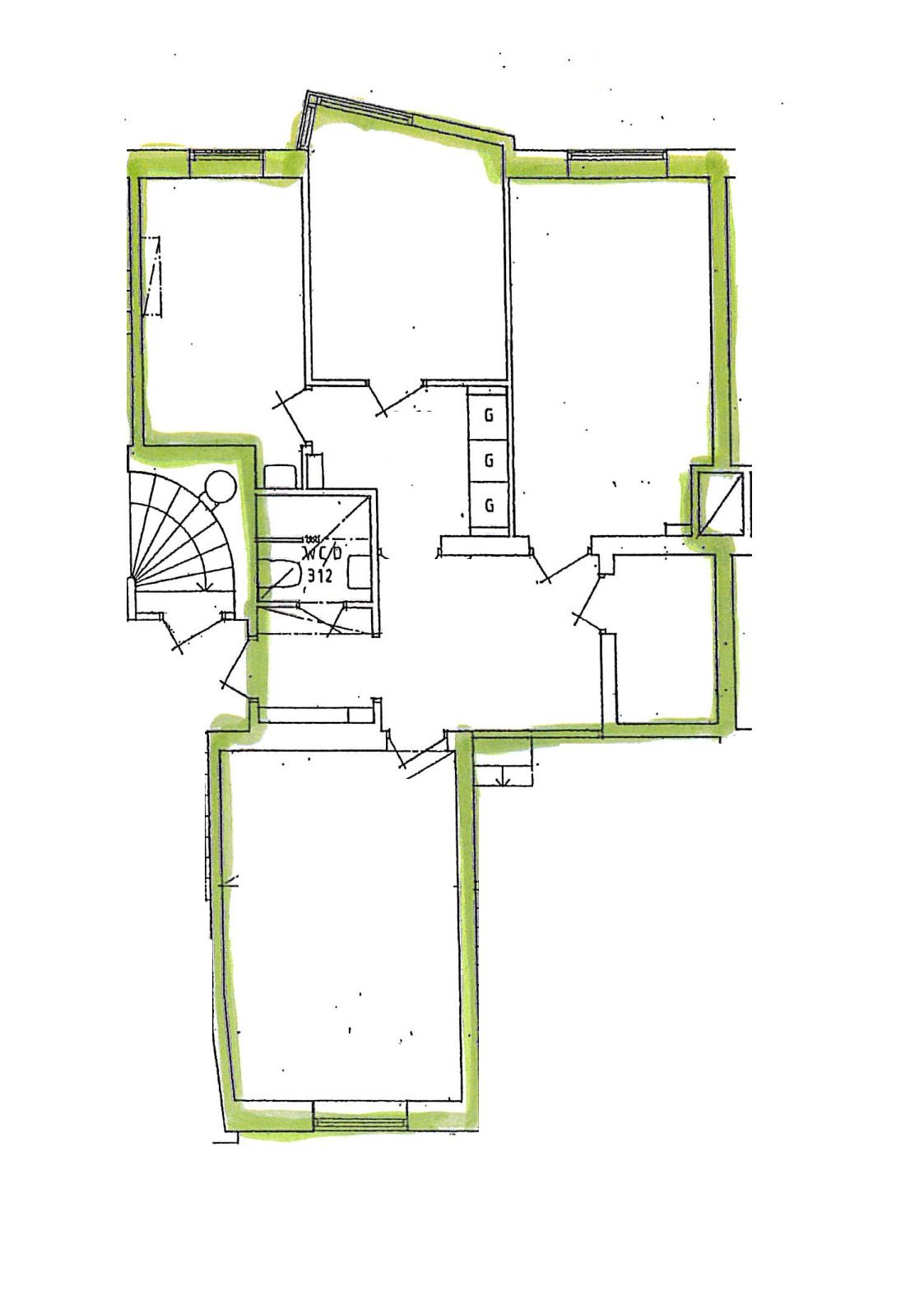
Planskiss

Yta

78 m²

Hyra

Tillträde

Enligt överenskommelse

Beskrivning

  • Kontor

Kontorslokal nära Mariatorget

Välkommen till denna effektiva lokal med central placering på Södermalm. Lokalen ligger en halv trappa upp från gatan med entré från fastighetens trapphus. Lokalen är rumsindelad och går att ändra om planlösning. I dagsläget består planlösning av 2 rum mot fastighetens innergård samt ett större rum ut mot Krukmakargatan. Utöver det finns ett pentry mot innergården. Uppfräschning av lokalen kan ske i samråd med ny hyresgäst. Tillträde från omgående eller enligt överenskommelse. Avtalstid 3 år. Säkerhet enligt överenskommelse. Välkommen på visning!

Ytor

  • Total yta:

    78 m2

Ekonomi

Tillträde:

Enligt överenskommelse

Utförande

Fastighetsbeteckning:

Krukmakargatan 34

Byggår:

1947

Våningsplan:

1

Teknisk information

Ventilation:

Mekanisk ventilation

Omgivning

Kommunikationer

T-bana: T-bana röd linje från Zinkensdamm Bussar: Buss 4 stannar runt hörnet

Krukmakargatan 34

Om New Property AB

New Property är en ledande fastighetsrådgivare med ett heltäckande erbjudande från uthyrning till transaktion. Vi är den största uthyraren i Stockholm och möjliggör fastighetstransaktioner över hela Sverige. Vi har ett nytt sätt att se på fastighetsrådgivning som bygger på de förtroendefulla relationerna vi skapar, bekräftat i det stora antalet återkommande kunder. För oss står alltid kunden i centrum. Vi är länken mellan fastighetsägare och hyresgäster - säljare och köpare. Vi är experter på uthyrning, fastighets- och investeringsrådgivning. Vårt dedikerade team har gedigen erfarenhet, marknadsinsikt och engagemang av att skapa bestående värden för våra kunder. New Property grundades 2005, och har vuxit genom organisk tillväxt till att idag vara ett partnerägt bolag med ett team av 30 erfarna fastighetsrådgivare.

New Property AB

Nybrogatan 39

114 39 Stockholm

www.newproperty.se

Fler annonser från New Property AB