Danderydsvägen 6

Djursholm
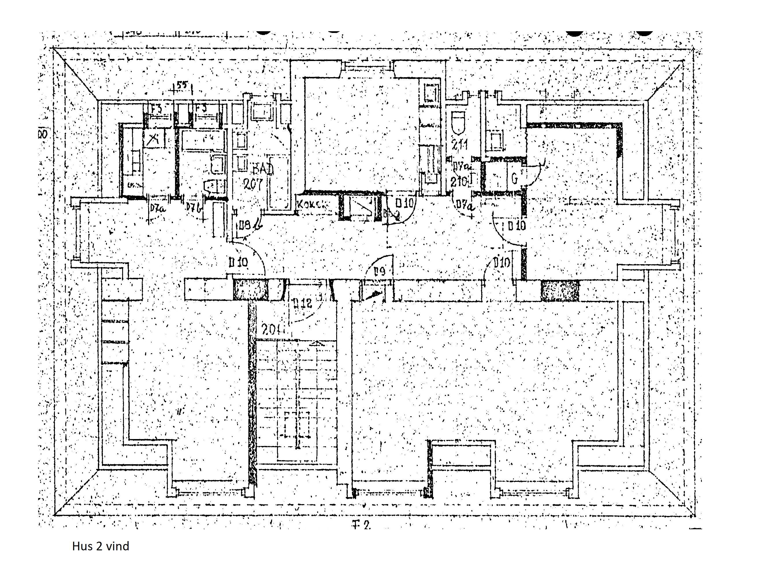
Planskiss

Yta

500 m²

Hyra

Tillträde

Enligt överenskommelse

Beskrivning

  • Kontor

Verksamhetslokaler centralt i Djursholm

Ett vackert hus på lummig tomt. Senast var här en förskola. Tomten är på drygt 5 200 kvm och inhyser både parkmark och trädområden. Huset kommer att anpassas för nya hyresgäster.

Ytor

  • Total yta:

    500 m2

Ekonomi

Tillträde:

Enligt överenskommelse

Utförande

Fastighetsbeteckning:

Danderydsvägen 6

Teknisk information

Ventilation:

Mekanisk ventilation

Omgivning

Närservice:

Djursholms centrum ligger endast 5-7 min promenad bort. Här finns restauranger, affärer och bank.

Kommunikationer

Pendeltåg: Roslagsbanan T-bana: Mörby Centrum Tvärbana: Roslagsbanan

Danderydsvägen 6

Om New Property AB

New Property är en ledande fastighetsrådgivare med ett heltäckande erbjudande från uthyrning till transaktion. Vi är den största uthyraren i Stockholm och möjliggör fastighetstransaktioner över hela Sverige. Vi har ett nytt sätt att se på fastighetsrådgivning som bygger på de förtroendefulla relationerna vi skapar, bekräftat i det stora antalet återkommande kunder. För oss står alltid kunden i centrum. Vi är länken mellan fastighetsägare och hyresgäster - säljare och köpare. Vi är experter på uthyrning, fastighets- och investeringsrådgivning. Vårt dedikerade team har gedigen erfarenhet, marknadsinsikt och engagemang av att skapa bestående värden för våra kunder. New Property grundades 2005, och har vuxit genom organisk tillväxt till att idag vara ett partnerägt bolag med ett team av 30 erfarna fastighetsrådgivare.

New Property AB

Nybrogatan 39

114 39 Stockholm

www.newproperty.se

Fler annonser från New Property AB