Drottninggatan 83

Centrum, Karlshamn
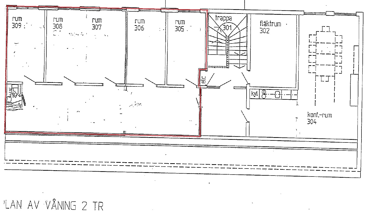
Planskiss

Yta

90 m²

Hyra

Tillträde enl överenskommelse.

Tillträde

Tillträde enl överenskommelse.

Beskrivning

  • Kontor
  • Kontorshotell & coworking

Kontorslokal centrala Karlshamn

Kontorslokal på ca 90kvm i Karlshamn, lokalen är en del av ett kontorshotell med tillgång till konferens och kaffemaskin. Ytan är ev delbar vid behov. Ej anpassad.

Ytor

  • Total yta:

    90 m2

Ekonomi

Tillträde:

Tillträde enl överenskommelse.

I hyran ingår:

Värme, skatt, el

Hyresinformation:

Tillträde enl överenskommelse.

Utförande

Fastighetsbeteckning:

Norrköping 13

Byggår:

1929

Renoveringsår:

2014

Våningsplan:

3 av 3

Antal rum:

4

Dokument

Teknisk information

Uppvärmning:

Fjärrvärme

Ventilation:

FTX med kyla

Drottninggatan 83